孫榮煒
金屬表麵預處理是金屬加工領域中至關重要的環節。不僅影響著製品的外觀和質感,更直接關係到產品的性能、壽命以及應用範圍。金屬表麵預處理的目的在於保證表麵平整和清除表麵附著物,增強金屬表麵結合力和附著力,例如:金屬工件在加工、運輸、存放過程中,表麵帶有氧化皮、鐵鏽、焊渣、塵土以及油脂和其他汙物。對表麵進行電鍍、噴塑、塗裝等表麵處理,要先進行表麵預處理;否(fou)則(ze),不(bu)僅(jin)影(ying)響(xiang)覆(fu)層(ceng)與(yu)金(jin)屬(shu)基(ji)體(ti)的(de)結(jie)合(he)力(li)和(he)耐(nai)蝕(shi)性(xing),而(er)且(qie)還(hai)會(hui)使(shi)金(jin)屬(shu)在(zai)有(you)覆(fu)層(ceng)防(fang)護(hu)下(xia)繼(ji)續(xu)腐(fu)蝕(shi),進(jin)而(er)使(shi)覆(fu)層(ceng)剝(bo)落(luo),影(ying)響(xiang)金(jin)屬(shu)工(gong)件(jian)的(de)力(li)學(xue)性(xing)能(neng)和(he)使(shi)用(yong)壽(shou)命(ming)。金(jin)屬(shu)表(biao)麵(mian)結(jie)構(gou)如(ru)圖(tu)1-1所示和金屬在工業環境被汙染的表麵如圖1-2所示:

圖1-1金屬表麵結構

圖1-2 金屬在工業環境被汙染的表麵
對金屬表麵進行電鍍、噴塑、塗裝等表麵處理時,表麵預處理需進行哪些內容呢?表麵預處理內容包括:表麵整平、脫脂、浸蝕、表調和表麵活化,此處簡要介紹一下表麵預處理的表麵整平和脫脂處理的這兩部分:
1、表麵整平
去除工件表麵的毛刺、鏽跡、氧化皮等缺陷,提高工件表麵的平整度的過程。清理的方法有磨光、拋光、滾光、塑料整平和成批光飾,主要介紹一下表麵整平的磨光和拋光兩種方法。
1.1 磨光
磨光是指使用沾有磨料的磨光輪或磨光帶在高速旋轉下切削金屬工件表麵的毛刺、鏽跡、氧化皮等缺陷,提高表麵的平整度,根據零件的硬度選擇合適的磨料。常用的磨料及用途如圖1-3所示:

1.2 拋光
拋光是指使用拋光輪和拋光蠟對零件表麵進行輕微的磨削,降低表麵粗糙度,提高表麵的平整度。拋光工序分為三個步驟:粗拋—中拋—精拋,根據零件類型和表麵質量要求,選擇合適的拋光蠟。常用的拋光蠟及用途如圖1-4所示:
2、脫脂處理
用化學或者電化學的方法,去除金屬工件表麵的油脂,增強塗層與基體的結合力和耐腐蝕性。金屬表麵常見的油脂可以分為兩類:一類是能夠與堿發生皂化反應的油脂,稱為皂化性油脂;另一類是不能發生皂化反應的油脂且不溶於堿性溶液,稱為非皂化性油脂,這兩種油脂均不溶於水。常用除油方法、特點和應用範圍如圖1-5所示:
主要介紹有機溶劑除油的方法,常用的有機溶劑有煤油、酒精、丙酮等。有機溶劑除油的方法有:浸泡法、噴淋法、聯合除油法。
2.1 浸泡法
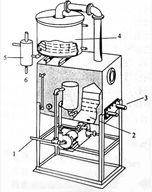
浸泡法是將工件浸入有機溶劑的設備中,使工件表麵與溶劑充分接觸,保證油汙能夠去除,除油浸泡設備如圖1-6suoshi。rongjiqingxikeyixuanzeshiwenhuozhejiare,jiarerongjideqingxixiaoguobishiwenhao,biyaoshikeyijiaobanrongyejiasuyouwuderongjiesudu。jinpaofaderongjiruochangshijianbugenghuan,jiangdaozhiyouwuquchuxiaoguobujia。weileshixianrongjifeiyedezhongfuliyongxing,zengjialezhengliuhuishouchuli。rongjizhengliuhuishoushebeirutu1-7所示:
圖1-6 浸泡除油設備
裝置及其主要構造:1.冷凝管;2.容器設備;3.清洗工件;4.有機溶劑;
5.溶劑加熱管;6.容器支架;7.攪拌器
圖1-7 溶劑蒸餾回收裝置
裝置及其主要構造:1.沾汙溶劑進料管;2.沸騰溶劑蒸餾室;3.落汽蛇管接頭;
4.冷凝室;5.水分分離器;6.幹淨溶劑回流管
2.2 噴淋清洗法
噴淋設備與浸泡設備不同,操作時需密閉容器,通過不同壓力的噴槍將加熱後的溶劑直接噴射到工件的油汙表麵,噴淋除油設備如圖1-8所(suo)示(shi)。由(you)於(yu)溶(rong)劑(ji)的(de)活(huo)性(xing)和(he)噴(pen)射(she)壓(ya)力(li)的(de)共(gong)同(tong)作(zuo)用(yong),使(shi)工(gong)件(jian)表(biao)麵(mian)的(de)油(you)汙(wu)溶(rong)解(jie)脫(tuo)落(luo),噴(pen)淋(lin)直(zhi)至(zhi)表(biao)麵(mian)油(you)汙(wu)清(qing)除(chu)幹(gan)淨(jing),根(gen)據(ju)油(you)汙(wu)的(de)種(zhong)類(lei)選(xuan)擇(ze)合(he)適(shi)的(de)壓(ya)力(li),一(yi)般(ban)在(zai)低(di)壓(ya)條(tiao)件(jian)下(xia)進(jin)行(xing)(0.05~0.2MPa)。噴淋不僅能夠去除油汙,而且還能去除黏附表麵的固體顆粒,例如黏附在工件表麵的鐵屑、石英砂、灰塵等也能衝洗幹淨。但噴淋清洗法有較大的局限性,第一點是對於沸點低、易揮發、毒性大的溶劑不宜使用噴淋清洗法,例如:汽油、二氯甲烷、丙酮等;第二點是對於結構相對複雜的零件,除油效果不好。
圖1-8 噴淋除油設備
裝置及其主要構造:1.冷凝管;2.容器設備;3.清洗工件;
4.有機溶劑;5.溶劑加熱管;6.容器支架;7.噴射器
2.3 聯合除油法
聯合除油法就是將單獨的除油法,根據除油需要組合成二元法或者三元法,如浸泡—蒸汽聯合法、噴淋—蒸汽聯合法、浸泡—噴淋—蒸汽聯合法。聯合除油法克服了單一除油的局限性,使溶劑去除工件表麵油汙的效果更佳。
浸泡—噴淋聯合除油法是將工件先放在沸騰的熱溶劑中浸泡一段時間,工件表麵油汙基本處理幹淨後,使用0.1MPa—0.2MPadepenqiangjiangrongjipenshedaogongjianbiaomianjinyibuquchuyouwu。duiyuzhongyouwudegongjian,jinpaozhinengquchudabufenyouwuhuoshirongjirongjiedeyouwuzhongxinnianfudaogongjianbiaomian,zaishiyongpenlindefangfajinxingercichuli,nenggouyouxiaoquchugongjianbiaomiandeyouwu。
jinshubiaomianyuchulidexiaoguohaohuai,yingxianghouxubiaomianchulidegezhonggongxudecaozuojizhiliangyaoqiu。wenzhongjieshaodeyoujirongjichuyoufa,changyongyuzhongyouwugongjianchuli,danshishiyongdanyiyoujirongjichuyoudefangshishibunenggoumanzubiaomianchulideyaoqiude,ru:電鍍、噴塑、塗裝等表麵要求較高,還必須進行化學除油或者電化學除油才能滿足要求。